Gamalt blir nytt.
«Denne serien er for alle som vil ta vare på eldre Ålhytter og som treng inspirasjon og gode råd.»
Laga av Erlend Hagen, Bård Svardal, Eldgrim Springgard og Stein Hofve.
Treng du eit lite dytt for å komme i gang?
Denne serien blir laga for alle som eig ei eldre hytte, eller eit hyttetun, som treng alt frå enkelt vedlikehald til ei meir omfattande oppgradering. Gjennom fjorten episodar kan du følgje med på arbeidet vårt med Sangefjellvegen 123. Sjå tidslina framover i denne episoden. Kanskje blir du inspirert? Kanskje får du nyttige tips til rehabilitering og ombygging av eiga hytte, og kanskje tek du kontakt med oss i Ålhytta. Me hjelper deg gjerne med å ta vare på hytta di; både konstruksjon, arkitektur, og rommet rundt.
La gamalt bli nytt
Når er taket nådd? Kor mange hytter er det plass til i norsk natur? Det er sannsynleg at talet på nybygde hytter vil flate ut. Framover blir det kanskje meir viktig å forvalte eksisterande bygningsmasse. Ei eldre hytte kan representere ein del av kulturarven vår, og ei Ålhytte har ei historie som det er verdt å ta vare på. Difor vil Ålhytta rette søkelyset mot nettopp det å ta vare på. Ofte kan det vera mest fornuftig å la det gamle bli nytt.
«I framtida kan det bli meir viktig å forvalte eksisterande bygningsmasse.»
Ikkje berre støv.
«No må noko gjerast med den gamle familiehytta.»
Men viss du vil i gang med ei oppgradering: I kva ende er det best å starte?
- Er til dømes tomtegrensa fastsett?
- Renn det vatn inn under hytta i vårløysinga og lengre nedbørsperiodar?
- Er hytta i forsvarleg brannteknisk stand?
- Treng veggane etterisolering?
- Kan brukte materialar brukast om att eller er det kast?
- Er ny vegløysing nødvendig?
- Er det nok straum til den nye kjøkkenløysinga?
- Utedo var ein gong ok, men no ser alle fram til både do og dusj.
- Og når me først er i gang, er det kanskje lurt å bygge på eit ekstra soverom?
Mange spørsmål vil dukke opp i denne myldrefasen. Då er det viktig å lage, eller få hjelp til å lage, ein gjennomtenkt plan der dei ulike tiltaka blir sett inn i ei fornuftig rekkefølge.
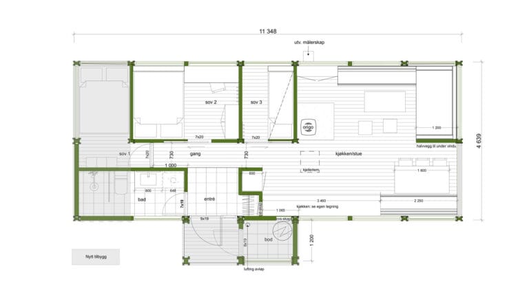
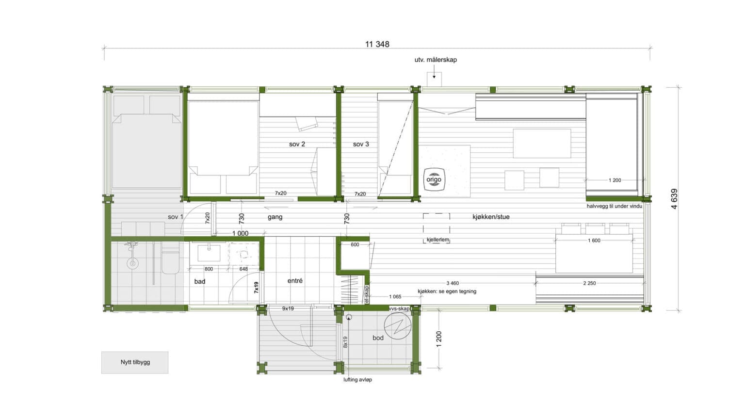
Gjennom sommarhalvåret 2025 vil Ålhytta, skritt for skritt, guide deg gjennom arbeidet vårt med å gjera Sangfjellvegen 123 til eit moderne hyttetun. Ålhytta håpar du kan bruke denne serien som ein vegleiar i ditt oppgraderingsprosjekt.
Planen 2025
Er byggeløyve nødvendig?
Regelverket rundt byggeløyve kan framstå komplisert. Kva må byggeløyvast og kva må til av dokumentasjon (teikningar/situasjonsplan) i ulike prosjekt?
Laurdag 4. oktober 2025: Åpen dag
Kom og sjå det ferdige opprusta hyttetunet i bruk. Me gler oss til å fortelje om og vise fram arbeidet vårt.
Velkomen til Åpen dag i Sangefjellvegen 123.
«Gjennom 2025 rustar Ålhytta opp Sangfjellvegen 123 som på ein-to-tre, kan gi eigarar gode råd om å ta vare på hytta.»
Avdelingsleiar for produksjon

Skal du gjera noko med hytta?
Me hjelper deg!
Kvifor bruke oss når du skal ruste opp Ålhytta?
Byggesystem i utvikling
Byggesystemet har sidan sekstitalet hatt mange revisjonar. Når hytta skal oppgraderast er det berre Ålhytta som kjenner årsmodellen og kan hente fram dei rette løysingane.
Godt mannskap
Våre håndtverkarar har solid erfaring og kunnskap om Ålhytter.
Det er viktig for å ta vare på det unike byggesystemet og dei smarte løysingane.Heil ved og puter som passar
Vårt tilpassa interiør er laga i heiltre og varar lenge. Systugu sørger for at møbelputene passar.
Livslangt forhold
Me bygger ikkje berre nye hytter, men utfører små og store oppdrag i hytta si levetid.



























