Endring av planløysing og fasadar: Er byggeløyve nødvendig?
«Som arkitekt og rådgiver i prosjektet ved Sangefjellvegen 123 har det vært et overordnet mål å videreføre kvalitetene fra den opprinnelige hytta i tråd med byggesystemet, samtidig som vi tilpasser den til dagens funksjonelle behov.»
Daniel Lund Godbolt, arkitekt MNAL
Laga av Erlend Hagen, Bård Svardal, Eldgrim Springgard og Stein Hofve.
Skal kjenne att den gamle hytta
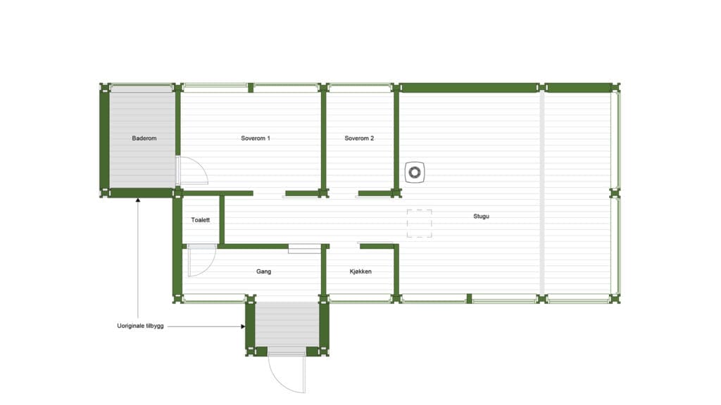
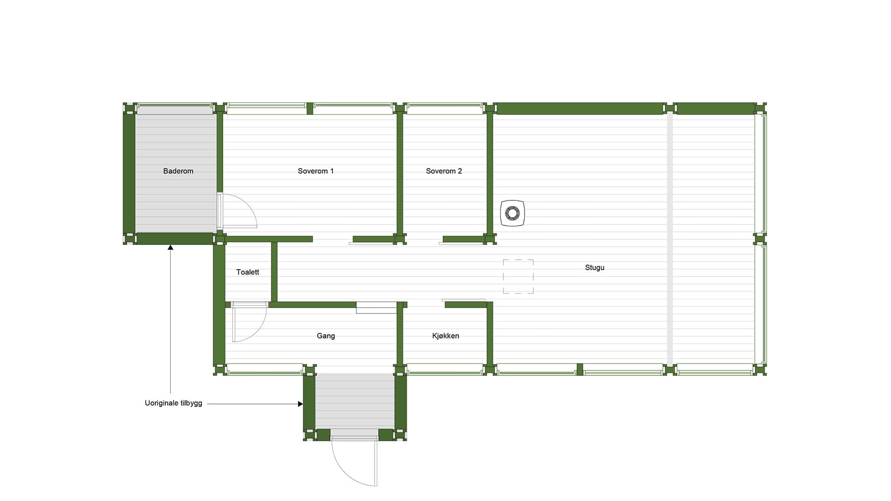
Hytta, slik ho står, har gjennom åra fått fleire påbygg som ikkje er ein del av det originale systemet, og som har hatt varierande teknisk og arkitektonisk kvalitet.
I vår ombygging ønskjer vi å tilbakeføre hytta til det opphavlege Ålhyttedesignet. Vi har valt å fjerne påbygg og utvikle ein ny, kompakt plan basert på dei opphavlege ideane og modulane. Tanken er å rette opp dårlege romløysingar, uryddige fasadar, svak fundamentering og å etterisolere.
Rehabilitering av hytta blir eit omfattande arbeid:
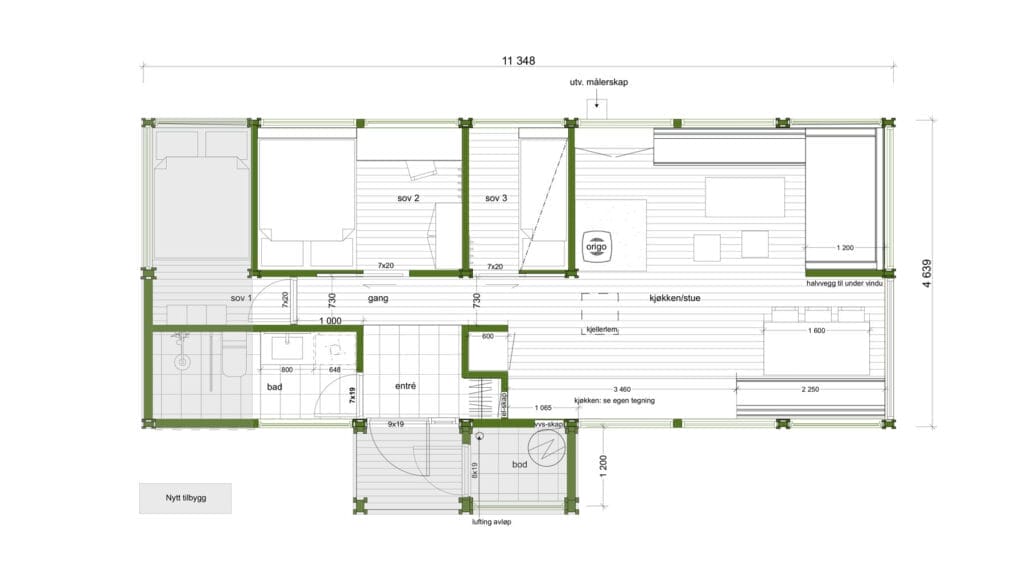
- Utvida endeveggEndevegg med gamalt påbygd vaskerom blir utvida til full breidde.
- Utvida inngangspartiInngangspartiet blir utvida til dobbel breidde.
- RefundamenteringGamle påbygg på begge gavlveggane blir refundamenterte.
- Ekstra plassNytt areal vil gi plass til eit ekstra nisjesoverom, eit moderne bad og ei teknisk bod.
- Innlagt vatn og avløpHytta skal få innlagt vatn og avløp med eige reinseanlegg.
- ÅlhyttekjøkkenDet blir nytt Ålhyttekjøkken i open løysing.
- ÅlhytteinteriørMellom anna den spesielle dagsenga og benkeseksjonar.
- Ny vindaugsplasseringPå aust- og nordvegg blir det ny vindaugsplassering og alle vindauge blir skifta.
- Oppgraderte veggarVeggane blir etterisolerte og får ny ytterkledning.
- Omn og pipeløpOmn og pipeløp vil bli bytta ut.
Dagens løysing er upraktisk: Må gjennom eit soverom for å komme til baderommet og trongt og usosialt kjøkken.
Etter ombygginga skal hytta vera til å kjenne att, men med oppgraderte fasilitetar og ein utsjånad som harmonerer meir med klassisk Ålhyttedesign. Sjølv om hytta er ein eldre modell, har Ålhytta dei gamle malane i arkivet og kan lett lage nye modular og spesialtilpassa interiør.
«Vårt mål har vært å skape en mer praktisk hytte som imøtekommer ønsket om økt komfort, samtidig som den forblir arealeffektiv og kompakt – i tråd med Ålhyttas opprinnelige idé.»
Daniel Lund Godbolt, arkitekt MNAL
Daniel Lund Godbolt
Daniel Lund Godbolt, arkitekt MNAL, har vore vore arkitekt og rådgjevar i rehabiliteringsprosjektet Sangefjellvegen 123. Daniel er eigar av eit eldre Ålhyttetun i Eggedal og har brei erfaring med å ta vare på hytta.
Arkitekten sine tankar
Å ta vare på og videreutvikle ei Ålhytte
– med nye behov i tråd med arkitekturen
Av Daniel Lund Godbolt, arkitekt MNAL
Ålhytta representerer et viktig kapittel i norsk etterkrigsarkitektur, der arkitektene søkte å forene nye, rasjonelle produksjonsmåter med høy arkitektonisk kvalitet og god tilpasning til landskapet. Med sitt karakteristiske modulære uttrykk og sin funksjonelle, arealeffektive planløsning har Ålhytta i dag fortsatt en sterk appell – både estetisk og bruksmessig.
Som arkitekt og rådgiver i prosjektet ved Sangefjellvegen 123 har det vært et overordnet mål å videreføre kvalitetene fra den opprinnelige hytta i tråd med byggesystemet, samtidig som vi tilpasser den til dagens funksjonelle behov.
For mange hytteeiere i dag er det nye forventninger til bruksstandard og funksjonalitet. Vårt mål har vært å skape en mer praktisk hytte som imøtekommer ønsket om økt komfort, samtidig som den forblir arealeffektiv og kompakt – i tråd med Ålhyttas opprinnelige idé.
Hytta på Sangefjellvegen 123 er fra 1970-tallet, og har gjennom årene fått flere tilbygg som ikke inngår i det opprinnelige modulsystemet. Disse påbyggene har hatt varierende teknisk og arkitektonisk kvalitet, og behovet for oppgradering har vært tydelig – både med tanke på vedlikehold, energieffektivisering og økt komfort.
Vi har valgt å fjerne senere påbygg som ikke er en del av Ålhytta-systemet, og i stedet utvikle en ny og kompakt plan basert på de opprinnelige modulene. Selv om Ålhytta-systemet har gjennomgått teknisk utvikling siden 1970-tallet, har fabrikken på Ål fremdeles mulighet til å tilpasse produksjonen til de opprinnelige målene. Dette er både bærekraftig og en verdifull ressurs for eiere av eldre Ålhytter som ønsker å bygge om.
På Sangefjell har vi brukt byggesystemets logikk for å videreføre de romlige og strukturelle kvalitetene som kjennetegner Ålhytta, både innvendig og utvendig. Vi har søkt å gjenopprette helheten i systemet ved å fjerne uhensiktsmessige påbygg og erstatte dem med en ny halvaksemodul og et overdekket inngangsparti med bod. Dette gir hytta tilbake sin lesbarhet som systemhytte – en kvalitet som har gjort Ålhytta til en arkitektonisk klassiker.
Vi har utviklet en ny funksjonell og arealeffektiv planløsning i tråd med byggesystemets prinsipper. Det etableres et nytt bad med dusj, servant, toalett og plass til vaskemaskin. Et ekstra soverom legges til, og de to eksisterende soverommene bevares med sine karakteristiske skyvedører – typisk for Ålhytter fra denne perioden. En ny skillevegg mot inngangspartiet skaper en nisje for yttertøy, og på motsatt side er det tilrettelagt for integrert høyskap og kjøl/frys. Det nye kjøkkenet åpnes mot allrommet og imøtekommer dagens ønske om en mer sosial og funksjonell løsning.
I allrommet har vi tegnet inn integrerte sittebenker og en sovealkove/dagseng – en lun krok som er fleksibel bruk og med utsyn til det storslåtte fjellandskapet. Innvendig panel bevares i stor grad, og det installeres en ny rentbrennende vedovn, både av hensyn til miljø og komfort.
Av hensyn til vedlikehold, inneklima og energibruk byttes ytterkledning og vinduer. Nye energieffektive vinduer monteres i samme format og plassering som tidligere – i tråd med byggesystemet. I tillegg har vi lagt til enkelte vinduer mot nord for å slippe inn mer dagslys i allrommet. I forbindelse med kledningsbytte etterisoleres ytterveggene for å forbedre både komfort og energieffektivitet – alt gjennomført i tråd med byggesystemet, så klart.
Alle tiltak er gjennomført med hensyn til minst mulig naturinngrep.
Dette prosjektet handler ikke om å fornye for fornyelsens skyld, men om å gi hytta et nytt liv – tilpasset nye behov, i tro mot Ålhyttas idé om enkelhet, naturtilpasning og varig kvalitet. Sangefjellvegen 123 viser hvordan en klassisk systemhytte kan revitaliseres for en ny tid – med respekt for arkitekturens intensjon og et blikk for stedstilpassede løsninger. Tiltakene er gjennomført med respekt for både det arkitektoniske uttrykket og hyttas plassering i landskapet. Vi håper det kan være til inspirasjon for andre som ønsker å ta vare på slike hytter og samtidig gi dem et nytt liv.
Tilbake til røttene – frå legohems til eige hyttetun
I artikkelen Tilbake til røttene, fortel Daniel Lund Godbolt om sitt nære kjennskap til Ålhytta. Frå eit byggesystem forma i ein liten fjellkommune, meiner han Ålhytta har skapt arkitektur med gode kvaliteter.
Slik blir den ombygde hytta
Regelverket rundt byggeløyve kan framstå komplisert. Kva må byggeløyvast og kva må til av dokumentasjon (teikningar/situasjonsplan) i ulike prosjekt?
«For mange kan ei byggesak virke skummel og uoversiktleg.»
Liv Torill Vissebråten Ålien, Ålhytta
Planar, lover og forskrifter regulerer alle endringar som blir gjort med ei hytte eller i eit hyttetun. Denne episoden vil peike på ein del av det generelle regelverket. Før du går i gang med å planlegge restaurering, ombygging eller andre endringar, er det viktig å sjekke ut kva reguleringsplanen eller kommuneplanen gir løyve til. Kommunen kan gi god hjelp. Men er du redd regelverket kan bli ein bøyg, kan Ålhytta tilby ei heil «byggesakspakke».
Kva krev byggeforskrifter og planverk?
All byggeaktivitet er regulert av statlege og kommunale krav. Staten regulerer forvaltning og bruk av alt areal gjennom plan- og bygningslova og i ulike byggtekniske forskrifter. Kommunen vedtek kommune- og reguleringsplanar som er bindande for arealbruk og bygging i eit avgrensa område.
Reguleringsplanen set mellom anna grense for kor stort areal som kan byggast og kor mange og kva type bygg du kan ha på tomta. Difor er det viktig å starte med å finne ut kva planverket gir løyve til. Som ein hovudregel må du søke kommunen om byggeløyve, men det er nokre unntak:
- Uthus/garasje under 50 kvm med mønehøgde opp til 4 meter.
- Tilbygg opp til 15 kvm.
- Riving av areal under 15 kvm.
- Bygging av veg på eiga tomt.
Bygg som er unntatt søknadsplikt, skal likevel meldast til kommunen før dei blir tatt i bruk. Kvifor? Kommunen treng ei melding om plassering av nybygd areal og lengde/breiddemål for å kunne oppdatere kartverket.
Aktuelle søknadspliktige endringar
- Skifte av eldstad eller pipeløp.
- Riving av areal over 15 kvm.
- Vatn og avløp.
- Bygging av andre installasjonar, som til dømes ein støttemur.
- Bruksendring av rom.Ofte er det aktuelt å gjera ei bod om til soverom.
- Ta i bruk hytta som bustad.Kommunane gir som regel dispensasjon for ein avgrensa periode. Kravet er at hytta har godkjent avløp og heilårsveg.
«Sangefjellvegen 123 viser hvordan en klassisk systemhytte kan revitaliseres for en ny tid.»
Daniel Lund Godbolt, arkitekt MNAL
Saksgang byggeløyve – kort fortalt
- 1. Sjekke kva reguleringsplan og lovverk gir løyve til.
- 2. Utarbeide situasjonsplan og teikningar.
- 3. Nabovarsling med frist 14 dagar.
- 4. Sende søknad med vedlegg til kommunen som må svare innan 3 veker (12 veker viss det er ein dispensasjonssøknad).
Avdelingsleiar for produksjon

Skal du gjera noko med hytta?
Vi hjelper deg!
Kvifor bruke oss når du skal ruste opp Ålhytta?
Byggesystem i utvikling
Byggesystemet har sidan sekstitalet hatt mange revisjonar. Når hytta skal oppgraderast er det berre Ålhytta som kjenner årsmodellen og kan hente fram dei rette løysingane.
Godt mannskap
Våre håndtverkarar har solid erfaring og kunnskap om Ålhytter.
Det er viktig for å ta vare på det unike byggesystemet og dei smarte løysingane.Heil ved og puter som passar
Vårt tilpassa interiør er laga i heiltre og varar lenge. Systugu sørger for at møbelputene passar.
Livslangt forhold
Me bygger ikkje berre nye hytter, men utfører små og store oppdrag i hytta si levetid.













